365英国上市公司

产品中心
封闭式绝对线性标尺ABS AT1143
来源:365英国上市公司  发布时间:2022-06-09 11:14:50   点击次数:0

封闭式绝对线性标尺ABS AT1143产品概要书

image.png 

2.特点

(1)最适于加工中心等NC机床的耐环境性优良的电磁感应式ABS AT标尺

■优良的耐污性能

·采用高耐污性能的电磁感应式传感器,针对线性标尺上的污垢实现优良的耐污性能防尘/■防水性能的提高

·改进了外框形状/开口位置、采用新材料防尘橡胶,实现优越的防尘/防水性能

(2)三菱电机株式会社高速串联接口的对应

(型号)

image.png 


适用系统

标尺符号

三菱电机株式会社

控制装置MITSUBISHI CNC 系列
MDS-D/MDS-DH系列

ABS AT1143

 

 

3.构成及其规格

31.构成

本产品的结构如下图所示。

通过有效长度、信号电缆、I/F进行规格的选择。

image.png 

 

3-2.主要规格

项目

内容

检出方式

电磁感应式

有效长度L0(mm)

24种:
140,240,340,440,540,640,740,840,940,1040,1140,1240,1340,1440,
1540,1640,1740,1840,2040,2240,2440,2640.2840,3040

外观·安装尺寸

请参考[4.外观-安装尺寸图』。

截面尺寸

85×37(mm)

电缆构成

请参考『3-3.电缆构成』。
※另请参考『电缆处理相关注意事项』。

位置数据

[o』的位置

参照图3-2

分辨力

0.05um

指示精度(20°℃)

有效长度L=140~2040mm : (3+5L/1000)um
有效长度Lo=2240~3040mm   : (5+5L,/1000)um

使用温度·湿度范围

0~50℃ 20~80%RH (非结露)

保存温度·湿度范围

‘-20~70℃ 20~80%RH(非结露)

供给电源电压

DC5V±10%

最大消耗电流值

290mA (Max)

信号电缆长度

可至29m(信号电缆+反馈电缆的合计)

最大响应速度

3m/sec

热膨胀系数

8×10 R rc

耐振动特性(55~2000Hz)

≤196m/s2(20G)※无报错情况下

耐冲击性(11ms 1/2sin)

有效长度LO=140~~2040mm:≤343m/s2 (35G)※无报错情况下
有效长度LO=2240~3040mm:≤294m/s2 (30G)※无报错情况下

串联接口

三菱电机株式会社伺服放大器
控制装置MITSUBISHI CNC 系列   MDS-D/MDS-DH系列
AT1143:串联接口全双工通信

保护等级

相当IP55(无空气供给的情况)

对应规格

EMC规格:CE市场对应

 

)规格可能会有变更

1:ABS数据位置

标尺绝对值数据在下图位置关系时为『0』。

另外,在下图的位置关系中读数头的向右移动时,输出的序列数据增加(+位置的计数)

image.png     

 

 

33.电缆构成

电缆构成如下图所示。

信号电缆通过标尺本体上的读数头左右任意一端的接口与电装部连接。请依据所需电缆的长度、输出的接口来进行信号电缆规格的选择。

image.png 

 

项目

规格

电缆长度

1m/3m/6m/9m/12m (12m 仅适用散线规格)

电缆材料

PVC套管φ6.5无导管

输出接口

①散线规格
②三菱电机接口规格

 

image.png 

 

(输出信号)

①散线规格

线色

信号

线色

信号

SD

*SD

RQ(REQ)

+5V

*RQ(REQ)

GND

绿

屏蔽线

F.G.



 

三菱电机接口规格

脚位

信号

脚位

信号

1

5V

7

DT

2

GND

8

DT

3

RQDT

5,6,9,10

未使用

4

RQDT

 

 

(电缆规格)

①散线规格

读数头侧(特制)

防水规格

image.png 

 

Code No.

Model

电缆长度(m)

06AFG596-1

AT1100F/M电缆散线 1m

1

06AFG596-3

AT1100F/M电缆散线 3m

3

06AFG596-6

AT1100F/M电缆散线 6m

6

06AFG596-9

AT1100F/M电缆散线 9m

9

06AFG596-12

AT1100F/M电缆散线 12m

12

 

②三菱电机接口规格


读数头侧(特制)

NC(Fl-20)


防水规格

非防水规格


 

image.png 

Code No.

Model

电缆长度(m)

06AFF957-1

AT1100M 电缆MDS-D 1m

1

06AFF957-3

AT1100M 电缆MDS-D 3m

3

06AFF957-6

AT1100M 电缆MDS-D 6m

6

06AFF957-9

AT1100M 电缆MDS-D 9m

9

 

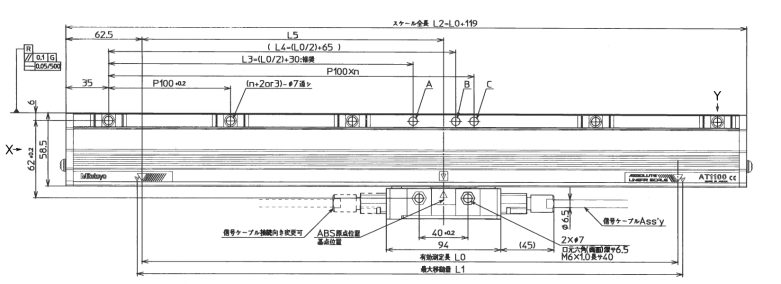
4.外观·安装尺寸图

image.png 

image.png 

 

AT1143安装尺寸表

Code No.

Model

L0

L1

L2

L3

L4

L5

穴数
n(倜)

559-100-43

AT1143-140

140

148

259

100

135

90

2

559-101-43

AT1143-240

240

248

359

150

185

147.5

3

559-102-43

AT1143-340

340

348

459

200

235

190

4

559-103-43

AT1143-440

440

448

559

250

285

247.5

5

559-104-43

AT1143-540

540

548

659

300

335

290

6

559-105-43

AT1143-640

640

648

759

350

385

347.5

7

559-106-43

AT1143-740

740

748

859

400

435

390

8

559-107-43

AT1143-840

840

848

959

450

485

447.5

9

559-108-43

AT1143-940

940

948

1059

500

535

490

10

559-109-43

AT1143-1040

1040

1048

1159

550

585

547.5

11

559-110-43

AT1143-1140

1140

1148

1259

600

635

590

12

559-111-43

AT1143-1240

1240

1248

1359

650

685

647.5

13

559-112-43

AT1143-1340

1340

1348

1459

700

735

690

14

559-113-43

AT1143-1440

1440

1448

1559

750

785

747.5

15

559-114-43

AT1143-1540

1540

1548

1659

800

835

790

16

559-115-43

AT1143-1640

1640

1648

1759

850

885

847.5

17

559-116-43

AT1143-1740

1740

1748

1859

900

935

890

18

559-117-43

AT1143-1840

1840

1848

1959

950

985

947.5

19

559-118-43

AT1143-2040

2040

2048

2159

1050

1085

1047.5

21

559-119-43

AT1143-2240

2240

2248

2359

1150

1185

1147.5

23

559-120-43

AT1143-2440

2440

2448

2559

1250

1285

1247.5

25

559-121-43

AT1143-2640

2640

2648

2759

1350

1385

1347.5

27

559-122-43

AT1143-2840

2840

2848

2959

1450

1485

1447.5

29

559-123-43

AT1143-3040

3040

3048

3159

1550

1585

1547.5

31

 

上一篇:没有了
下一篇:封闭式绝对线性标尺ABS AT1143产品概要书